Používame cookies na optimalizáciu našich webových stránok a našich služieb. Ďalšie informácie o cookies nájdete tu.

Nastavenie


NA PREDAJ:  Rodinný zrenovovaný dom s príslušenstvom a záhradou Ordzovany, okres Levoča, pozemok o rozlohe 574 m2

NA PREDAJ: Rodinný zrenovovaný dom s príslušenstvom a záhradou Ordzovany, okres Levoča, pozemok o rozlohe 574 m2

Popis nehnuteľnosti

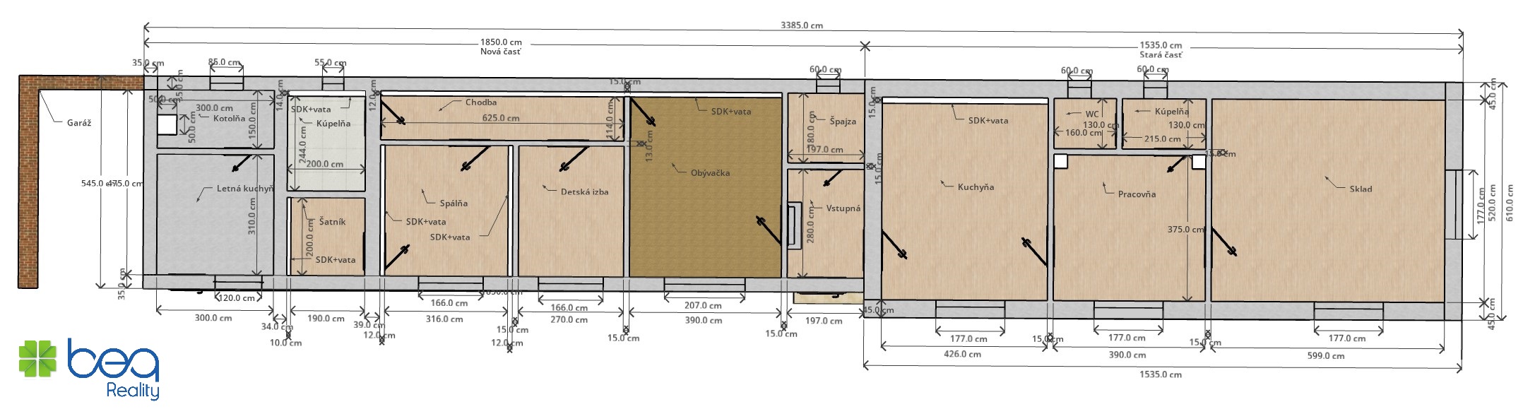
Dom pozostáva zo staršej prednej časti, postavenej približne v r. 1956 a novšej zadnej časti z r. 1980. Nachádza sa v strede obce Ordzovany pri kostole a je celoročne obývateľný. Dom je napojený na obecnú vodu, má prípojku elektriny, plynu, vlastnú žumpu. vydaný energetický certifikát.

Staršiu časť domu (o rozlohe cca 6 m x 15 m) tvorí veľká predná miestnosť, izba, kúpeľňa s vaňou a toaletou, kuchyňa. Novšiu časť domu (o rozlohe cca 5,50 m x 18,50 m) tvorí vstupná chodba, špajza, obývacia a detská izba, spálňa, kúpeľňa s vaňou a toaletou, šatník, kotolňa a letná kuchyňa so samostatným vchodom.

Na dome bola vykonaná rozsiahla renovácia v roku 2022 so zameraním na zvýšenie energetickej účinnosti a komfortu bývania:

- bol zateplený strop (v staršej časti 25 cm fúkanej celulózovej izolácie okrem prednej izby, v novšej časti 18 cm  fúkanej minerálnej vlny). Dodatočne bola na časti podkrovia položená 18 cm vrstva sklenej vaty na zvýšenie izolačného účinku - pokrýva novšiu zadnú časť domu okrem obývacej izby.

- obvodové severné steny a ďalšie vybrané steny v novšej časti domu a v kuchyni okrem špajze boli zateplené z interiérovej strany pomocou sadrokartónových predstien s vloženou 12 cm hrubou izoláciou zo sklenej vaty

- pod novú pvc podlahovú krytinu boli položené izolačné fólie

- rozvody elektriny v novšej časti domu, v celej kuchyni a väčšine pôvodnej časti domu sú medené

- vykurovanie v dome a ohrev vody zabezpečujem nový, moderný a úsporný kondenzačný kotol Protherm Panther Condens 25KKO, boli nainštalované nové, izolované rozvody kúrenia vedené v podlahe v novšej časti domu. Na radiátoroch sú termostatické hlavice. Ku kotlu bol pripojený nový 120 l externý zásobník na teplú vodu (PROTHERM FE 120L).

- pôvodné drevené okná a vchodové dvere boli vymenené za nové plastové s izolačným trojsklom 

- pri dome je nainštalovaná nádrž na zber dažďovej vody (IBC kontajner), čo umožňuje jej ďalšie využitie v záhrade, bol urobený nový náter plechovej strechy, obkopaná severná časť s odvádzaním vody = hydroizolácia.

 

Náklady na prevádzku domu sú približne 160,- EUR (cca pri 5 bývajúcich).

 

Za domom sa ešte nachádzajú hospodárske stavby a stodola. Za nimi úžitková záhrada s ovocnými stromami s prechodom na zadnú poľnú cestu.

 

Ordzovany sú vzdialené od Spišského hradu a Spišského Podhradia cca 4 km, od okresného mesta Levoča cca 19 km. K diaľničnému výjazdu je približne 5 km. Je to pokojná obec s počtom cca 160 obyvateľov. Premávajú tu autobusové spoje.

 

CENA: 109.000,- Eur 

 

Rada vám nehnuteľnosti ukážem aj osobne po dohode

na tel. čísle 0918 125 835.

 

Videoprehliadka

Bc. Beáta Kohiarová, RSc.

Vďaka viac než 15 ročným skúsenostiam na realitnom trhu pomáham ľuďom predať nehnuteľnosti bezpečne, výhodne a rýchlo.

Špecializujem sa na predaje a prenájmy v Levoči, Spišskej Novej Vsi a ich okolí, tu mám najviac predaných nehnuteľností a spokojných klietov. 

Začínala som s prácou realitnej maklérky v Spišskej Novej Vsi a moje prvé kroky po realitných cestách v roku 2010 boli pod značkou RE/MAX, s ktorou som ukončila spoluprácu v roku 2018 z osobných a rodinných dôvodov. V súčasnej dobe ma nájdete pod vlastnou značkou BEA REALITY Levoča, ktorá je členom Realitnej únie SR.

Práca realitnej maklérky ma skutočne baví a snažím sa ju robiť tak, aby boli moji klienti spokojní. Ľudia sa môžu na mňa obrátiť s dôverou, ak potrebujú riešiť svoje starosti či majú obavy s predajom, ak hľadajú človeka skúseného, vzdelaného, zodpovedného, čestného, trpezlivého, vytrvalého, s individuálnym a ľudským prístupom, ktorý im zabezpečí realitný servis, aký potrebujú.

Pokiaľ Vás čokoľvek ďalšie o mne a o mojej práci pre klientov zaujíma, neváhajte ma kontaktovať. Rada sa s Vami stretnem osobne. Teším sa na spoluprácu.


Bc. Beáta Kohiarová, RSc.

Kontaktný formulár

Stiahnuť PDF